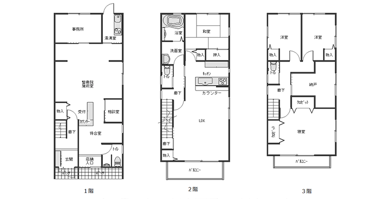
3階立て店舗兼用住宅

家族構成 大人2人+子供2人 
構造  木造3階建て
仕様 外壁:窯業サイディング 屋根:縦平葺 床:無垢フローリング・複合フロアー張
敷地面積  119.49㎡(36.11坪)
延床面積  179.14㎡(54.19坪)

注文住宅