さくらホーム|京都・滋賀のローコスト注文住宅&リフォーム
営業時間
9:00~18:00 (日曜祝日除く)
こだわり
ローコストの理由
検査体系と安全保障
商品紹介
お引き渡しまでの流れ
ホーム
施工事例
注文住宅
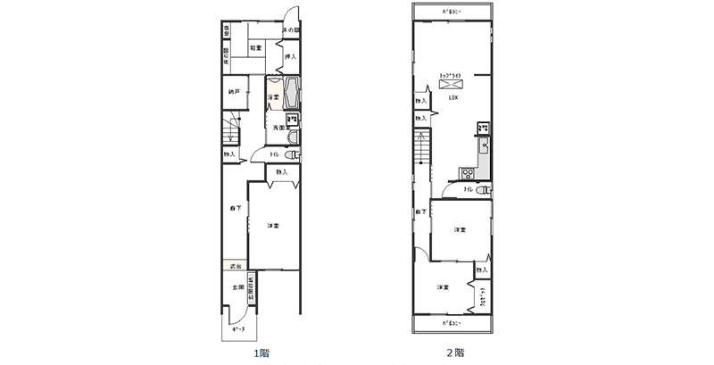
限られた空間を活かした住宅
限られた空間を活かした住宅
家族構成
夫婦+子供2人
構造
木造2階建て
仕様
外壁:窯業サイディング 屋根:平板瓦葺 床:複合フロアー張
敷地面積
92.41㎡(27.90坪)
延床面積
110.96㎡(33.49坪)