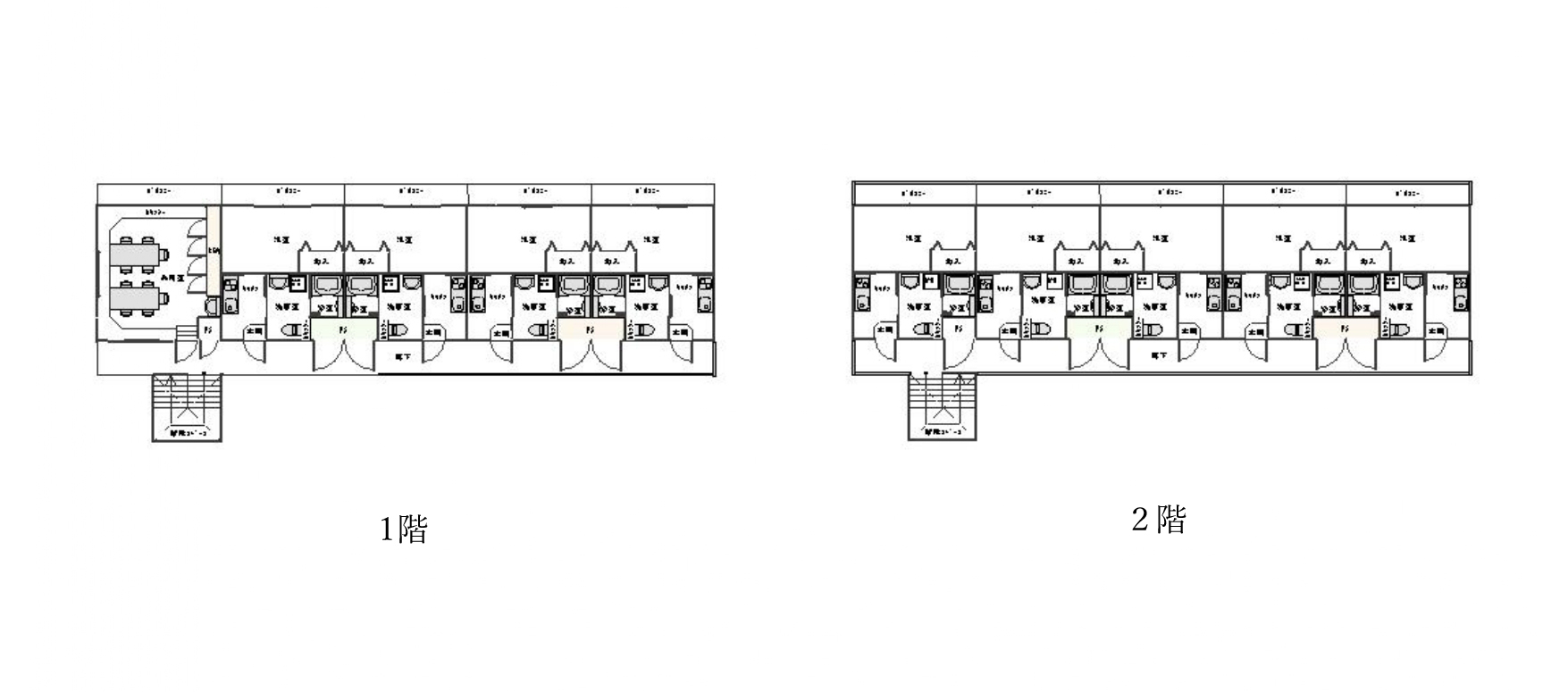
鉄骨造2階建て 学生マンション

設計 アロウデザイン1級建築士事務所 様
施工 さくらホーム  ㈱仲江建設
構造  鉄骨造2階建て
仕様 外壁:窯業サイディング仕上 屋根:縦平葺 床:クッションフロアー張
敷地面積  375.82㎡(113.68坪)
延床面積  247.05㎡(74.73坪)