さくらホーム|京都・滋賀のローコスト注文住宅&リフォーム
営業時間
9:00~18:00 (日曜祝日除く)
こだわり
ローコストの理由
検査体系と安全保障
商品紹介
お引き渡しまでの流れ
ホーム
施工事例
注文住宅
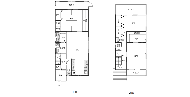
2面バルコニー&サンルームで物干し快適
2面バルコニー&サンルームで物干し快適
構造
木造2階建て
仕様
外壁:窯業サイディング 屋根:平板瓦葺 床:複合フロアー張
敷地面積
102.62㎡(31.04坪)
延床面積
101.89㎡(30.82坪)